About this listing
Nautilus offers the ideal location that every holiday maker desires. Situated opposite an expansive 42km spread of beach with crystal blue waters and pure white sand.
This ground floor unit certainly showcases that relaxed beach apartment feel and is nestled in one of the most beautiful settings on the NSW coast, picturesque Hawks Nest. There are fantastic fishing spots along the tranquil Myall River, Corrie Island and Barnes Rocks, as well as one of the finest 18 hole golf courses. Jimmy’s beach is the perfect place to enjoy water sports or take the children for a swim in the bay.
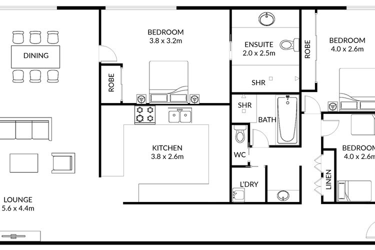
The unit comes fully equipped with all the modern conveniences such as a dishwasher, microwave, Air conditioner and clothes washing facilities to make your stay as relaxing as possible. The main living area opens out to the shady courtyard, through large glass sliding doors which let the cool ocean breeze flow through.
The main bedroom has a queen bed, large modern ensuite and a built-in robe. The second bedroom has two king single beds and a private balcony, and the third has two sets of bunks. There is a main bathroom located at the back of the unit making it easily accessible from bedrooms 2 and 3. All bedrooms are equipped with fans.
With the beautiful surf beach just across the road, and an easy walk to restaurants, shops and the Golf Club, a fun-filled holiday is assured.
IMPORTANT POINTS
-No Lift, stairs only in this complex - Ground floor unit.
-You need to BYO sheets, pillows cases and all of your towels.
-Strict no party or function policy.
-Windows can only be opened 12cm due to STRATA NSW legislation/limiters.
-This is not a serviced apartment, you will need to bring your own food, amenities and toiletries etc.
-Advertisement may include scenery images of our area.
STRA Permit ID: PID-STRA-86836




































